
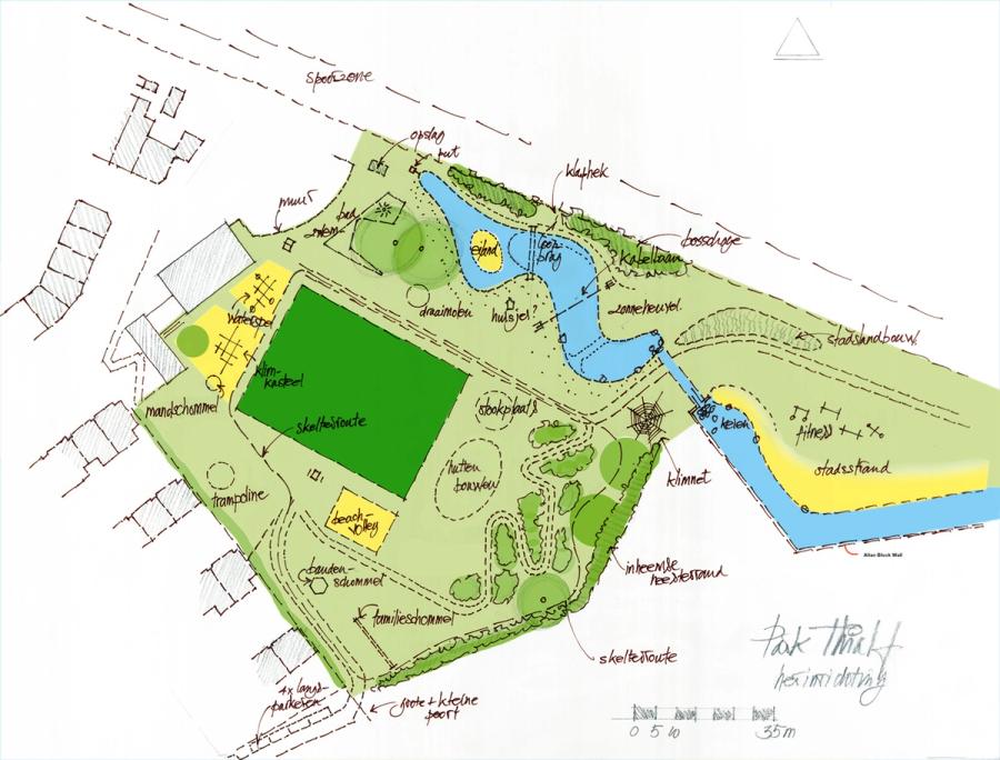
A diagonal green space in the Spijkerkwartier district of the City of Arnhem (Netherlands) - located between a railway and a school campus – was to be turned into an attractive neighborhood park and community center. In order to create the new park, the proposed new building, new children’s playground and reroute the existing Molenbeek Creek, the site needed many upgrades including the rearranging of a network of adjacent streets and a highly versatile and strong Allan Block segmental retaining wall to help control the creek flow and water levels.
The creation of Thialf Park was truly a community effort. In collaboration with landscape architect Marlies van Diest Design, BFAS Architecture and the local Urban Planning commission, a unique plan was created and agreed upon by the local residents, resulting in an enthusiastically received design and unique space for generations to come.
The project is located in an interesting plot of land. The terrain is a combination of sandy soils in the local hillsides and clay soil from the sedimentary deposits from the two nearby rivers, Ijssel and Rhine. These sedimentary layers were visible due to the roughly 8.2 ft (2.5 m) of grade change across the site. Additional site characteristics were a vast array of plant life, varying water levels and a mix of wet and dry soils that needed to be redeveloped.
A very unique feature was the Molenbeek Creek, which runs partly underground through an old clay brick culvert and becomes exposed above ground near the start of new Thialf Park. The underground portion effected the watershed greatly due to its lack of volume. The above ground portion needed to be increased to control the water levels and periodic localized flooding. By designing an Allan Block water application retaining wall, a detention basin was created, and the site’s water levels could now be controlled with an integrated weir and overflow. The designers used the AB Lite Stones product by Allan Block along with the integrated concrete overflow waterfall as part of the esthetic beauty in the finished park. The new Molenbeek Creek above ground portion now contributes to making the city of Arnhem more resilient to common flooding of the past.
One of the other reasons this site was chosen for redevelopment by the community was the soil contamination present from past industrial use. Careful consideration was taken by the designers to identify the contaminants and worked with the city for its remediation. It was determined that approximately 13,000 m3 (17,000 yd3) of soil was contaminated. The client, the Municipality of Arnhem, wanted to treat and reuse the contaminated soil as much as possible in a safe way as a cost saving measure. By using the Allan Block geogrid reinforced retaining wall in combination with a suitable PVA geogrids from Huesker Geosynthetics, it was possible to safely contain the contaminated soils behind the retaining wall, accommodate the Municipality of Arnhem requirements and provide a huge cost savings.
The local wall designer used the Allan Block design program, AB Walls to design the nearly 8 ft (2.4 m) tall water application retaining wall. Because the Allan Block retaining wall was to be such a prominent part of the park, the architects chose AB Lite Stone in a grey split faced appearance to compliment the site due to its long but short characteristics, manufactured by GODELMANN GmbH & Co. KG. They said it was the perfect choice for the site and helped make the wall appear shorter in height. The wall has become the perfect boundary between the school campus, playground, and the Molenbeek Creek.
The total work took about 4 months due to the fact that the site was a water-rich environment and needed an extensive dewatering system in use during construction. Due to this fact, the Allan Block retaining wall was built in several phases to accommodate the dewatering.
It was the first time that the contractor, Verhoeve Infra BV, worked with Allan Block, but after an on-site contractor training the retaining wall was built without any problems and the construction went smoothly from start to finish.
With the use of Allan Block’s AB Lite Stones and Huesker geogrids the clients were able to reduce cost of the project by not having to remove the contaminated soil off site and still get the desired natural stone appearance they were looking for.