Key Features
Streamline data collection from project plans with precision digital tracing
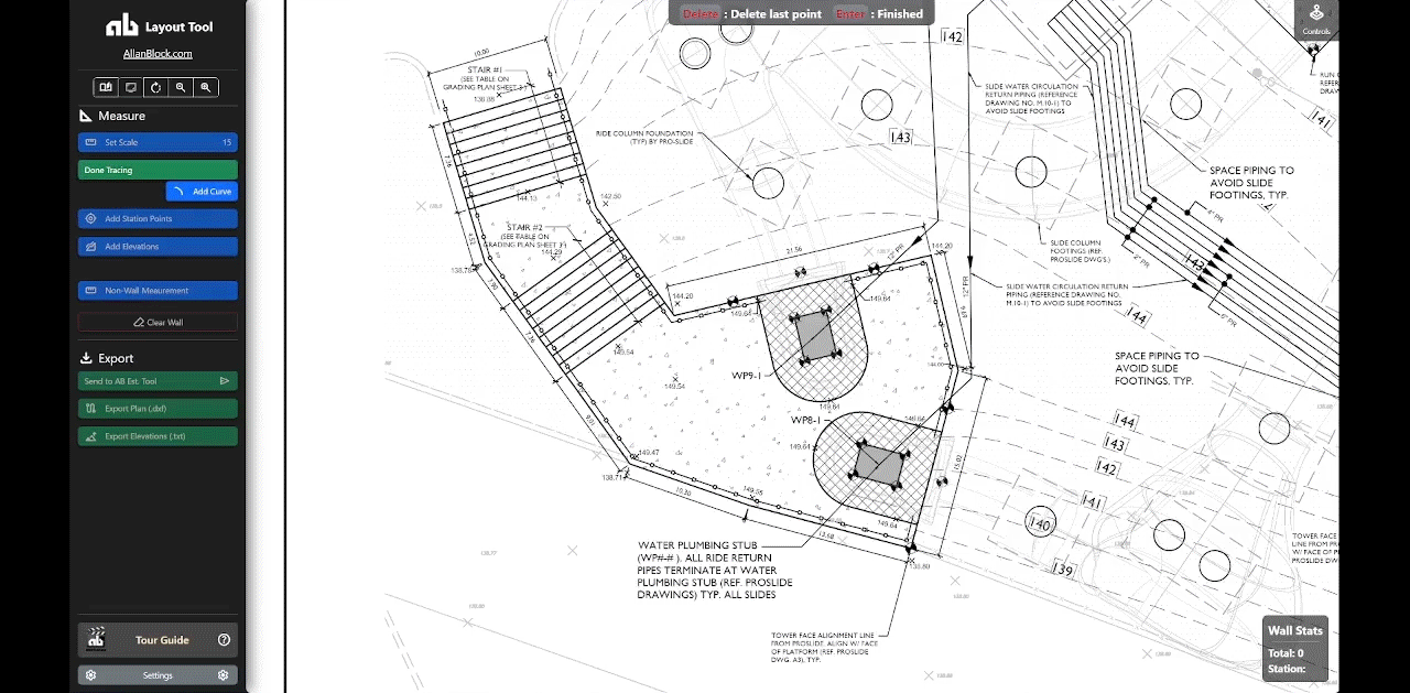
Visual Plan Tracing
Import PDFs or images and trace retaining walls with precision point-and-click interface for accurate measurements.
Scale Setting
Configure drawing scale for accurate dimensional data collection directly from your project plans.
Seamless Export
Export data directly to AB Walls Design Software or Allan Block Estimating Tool for streamlined workflow.
Simple 6-Step Process
From plan upload to data export - the entire process takes just minutes. Replace manual measurements with precise digital tracing.

Seamless Tool Integration
Designed to work perfectly with Allan Block's professional design and estimating software
AB Walls Software
Export layout data directly into AB Walls for comprehensive retaining wall design, 3D modeling, and professional construction drawings.
Learn About AB WallsEstimating Tool
Send precise measurements to the estimating tool for accurate material calculations, labor estimates, and project costing.
Learn About EstimatingSystem Requirements
Compatible Devices
- Desktop computers
- Laptop computers
- Modern web browsers
Not Compatible
- Mobile phones
- Tablets
- Touch-screen only devices
The AB Layout Tool requires a computer with mouse/trackpad for precise point clicking and plan tracing functionality.
